Standort 24536 Neumünster
24536 Neumünster
Verfügbar ab 01.07.2026
01.07.2026
Zustand Modernisiert
Modernisiert
Kosten
Kaufpreis 549000.00
549000,00 EUR
Provision 2,38% inkl. ges. Mwst.
2,38% inkl. ges. Mwst.
Flächen
Wohnfläche 181.03
181,03 m'
Nutzfläche 50.00
50,00 m'
Grundstücksfläche 842.00
842,00 m'
Zimmer 6.00
6,00
Schlafzimmer 4.00
4,00
Badezimmer 3.00
3,00
Stellplätze 5
5
Separate WC´s 1.00
1,00
Terrassen 1,00
1,00
Ausstattung
Bauweise Massiv
Massiv
Dachform Satteldach
Satteldach
Heizungsart Zentral
Zentral
Befeuerung Gas
Gas
Keller Teilweise
Teilweise
Energieausweistyp BEDARF
BEDARF
Gültig bis 06.04.2036
06.04.2036
Energiebedarf 150.17
150,17 kWh/(m²*a)
Energieträger GAS
GAS
Energieeffizienzklasse E
E
Baujahr 1956
1956
Geltende EnEV 2014
2014
Gebäudeart Wohn
Wohn
Objektnummer 26017_AFK
26017_AFK
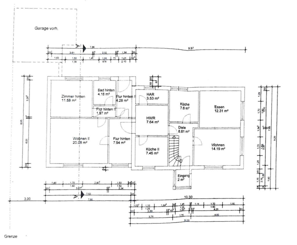
Zweifamilienhaus, teilsaniert in der Kieler Str. zu verkaufen! Ca. 130,00 und 49,00 m² Wohnfläche
Dieses schicke 2-Familienhaus befindet sich in der Kieler Str. in eine Einliegerstraße. Sie besteht aus dem Haupthaus mit ca. 131 m² und 4 Zimmern und dem Hinterhaus mit 2 Zimmern auf ca. 49,4 m². Das sonnige, pflegeleichte Grundstück besitzt eine Fläche von ca. 842 m².
Die Fenster in der Immobilien wurden umfassend ausgetauscht (2-fach-verglast), das Dach wurde gedämmt. Dazu wurden unterschiedliche Smart-Home-Komponenten im Haupthaus installiert.
Im Außenbereich befinden sich ein Doppelcarport mit großem Abstellraum, eine Garage, eine überdachte Terrasse und ein Stall/Voliere.
Durch die rückwärtige Schallschutzwand und die zunehmende Elektrifizierung der Züge, ist die Bahnstrecke Neumünster/Kiel kaum zu bemerken.
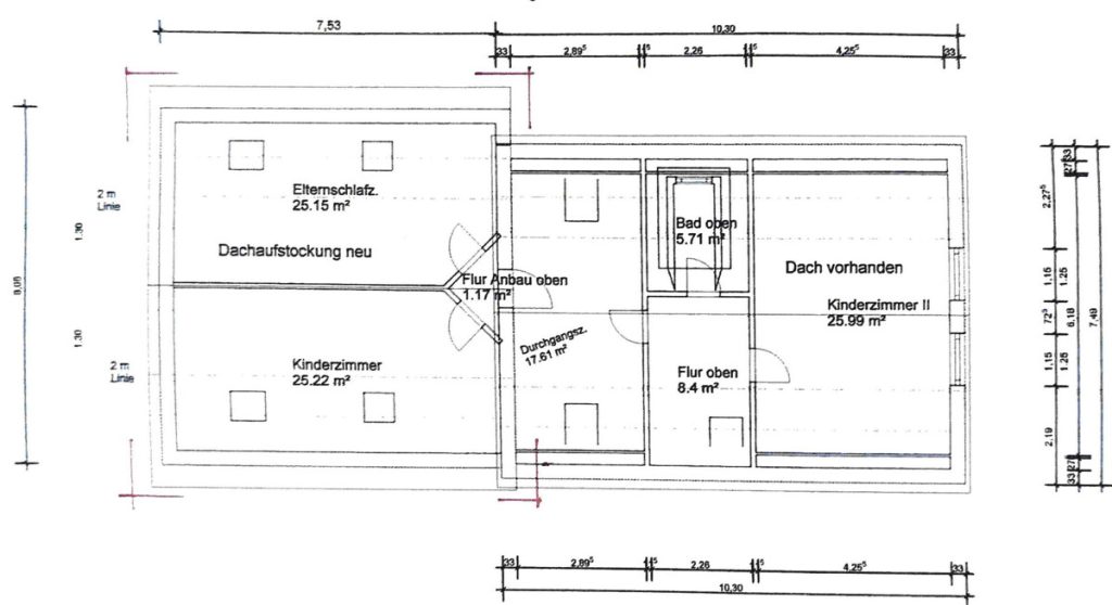
Das Haupthaus wurde ca. 1956 erbaut, um dann ca. 1976 um einen Flachdachanbau und eine Garage ergänzt zu werden. Der Anbau wurde 2019 mit einem Spitzdach überdacht.
Wohnung 1 (131,63 m²):
Wohn-/Esszimmer (EG)
Küche mit Einbauküche (EG)
Flur (EG+OG)
Badezimmer (EG+OG)
3 Schlafzimmer (OG)
Keller
Wohnung 2 (49,40 m²):
Wohnzimmer
Küche/Flur
Schlafzimmer
Außen:
Überdachte Terrasse
Doppelcarport mit großem Abstellraum
Garage
Stall/Voliere
Stahlwandpool
Sonstige Ausstattung:
Teilweise Smart-Home-Steuerungen
Indirekte LED-Beleuchtung in Wohnzimmer + Esszimmer
Außenrollläden (2019)
Alkoven (über den Kinderzimmern)
Sanierungen:
Dachdämmung (2019)
Anbau Hinterhaus (1976/2019)
Fenster (2019)
Heizung (2004)
PV-Anlage (4 Module)
Die Immobilie befindet sich in der Kieler Straße im beliebten Stadtteil Einfeld im Norden von Neumünster. Einfeld zeichnet sich durch seine gewachsene, familienfreundliche Struktur sowie die gelungene Kombination aus ruhigem Wohnen und guter infrastruktureller Anbindung aus.
Besonders hervorzuheben ist die Nähe zum Einfelder See, der nur wenige Minuten entfernt liegt und vielfältige Freizeit- und Erholungsmöglichkeiten wie Spaziergänge, Wassersport oder einfach entspannte Stunden in der Natur bietet.
Familien profitieren von einem sehr guten Bildungs- und Betreuungsangebot im direkten Umfeld: Mehrere Kindertagesstätten sowie Grund- und weiterführende Schulen befinden sich in kurzer Entfernung und sind teilweise bequem zu Fuß oder mit dem Fahrrad erreichbar. Dies macht die Lage besonders attraktiv für Haushalte mit Kindern.
Einkaufsmöglichkeiten für den täglichen Bedarf, Bäckereien, Ärzte und Apotheken sind im Stadtteil Einfeld sowie in der näheren Umgebung vorhanden und sorgen für eine komfortable Nahversorgung. Ergänzt wird das Angebot durch das nahegelegene Designer Outlet Neumünster, das überregional bekannt ist und eine Vielzahl an Einkaufsmöglichkeiten sowie gastronomischen Angeboten bietet.
Die Verkehrsanbindung ist ebenfalls hervorragend: Über die nahegelegene A7 Autobahn sind die Städte Hamburg und Kiel schnell erreichbar. Zudem besteht eine gute Anbindung an den öffentlichen Nahverkehr, sodass auch ohne Auto eine hohe Mobilität gewährleistet ist.
Insgesamt bietet die Lage eine ideale Kombination aus naturnahem Wohnen, familienfreundlicher Infrastruktur und guter Erreichbarkeit – ein attraktiver Wohnstandort für Jung und Alt.
Sie haben weitere Fragen zu dieser Immobilie oder suchen noch nach einer Immobilie?
Dann sprechen Sie mich gern und unverbindlich an, damit ich Sie beraten kann.
Ihr Ansprechpartner:
Dien Tohuus Immobilien GbR
Arne Fredenhagen
Mühlenstr. 21
24539 Neumünster
Mobil: +49 152 / 28896706
EMail:
Ich freue mich, über Ihren Anruf!
Bitte beachten Sie, dass wir, aufgrund der Vorgaben der neuen Datenschutzgrundverordnung (DSGVO), keine telefonischen Informationen zu dem Objekt erteilen können. Wenn Sie weiteres Interesse an diesem Objekt haben, dann füllen Sie bitte hierfür einfach das Kontaktformular mit Anschrift, Telefonnummer und E-Mail Adresse aus, damit ich Ihnen das vollständige Exposé zukommen lassen kann und ich, entsprechend der DSGVO berechtigt bin, Sie auch telefonisch zu kontaktieren. Wir bitten hierfür um Ihr Verständnis.
Alle Daten in diesem Exposé beruhen auf Angaben des Verkäufers – Die Objektangaben wurden mit großer Sorgfalt zusammengestellt. Für die Richtigkeit der Verkäufer-, Anbieter- und Angebotsangaben können wir keine Haftung übernehmen. Irrtümer bleiben vorbehalten.
Unsere Angebote sind freibleibend und unverbindlich. Die Einrichtung und Ausstattung auf den Grundriss-Zeichnungen ist beispielhaft dargestellt.
