Standort 24539 Neumünster
24539 Neumünster
Verfügbar ab 01.04.2026
01.04.2026
Zustand Rohbau
Rohbau
Kosten
Kaltmiete 775.00
775,00 EUR
Nebenkosten 75.00
75,00 EUR
Heizkosten 100.00
100,00 EUR
Kaution 2055
2055 EUR
Provision Courtagefrei f. den Mieter
Courtagefrei f. den Mieter
Flächen
Wohnfläche 64.39
64,39 m'
Nutzfläche 3.90
3,90 m'
Zimmer 2.00
2,00
Schlafzimmer 1.00
1,00
Badezimmer 1.00
1,00
Stellplätze 1
1
Terrassen 1,00
1,00
Ausstattung
Bauweise Massiv
Massiv
Heizungsart Zentral
Zentral
Befeuerung Fern
Fern
Keller Nein
Nein
Balkone 1.00
1,00
Barrierefrei True
Ja
Energieausweistyp BEDARF
BEDARF
Gültig bis 31.12.2026
31.12.2026
Energiebedarf 81.60
81,60 kWh/(m²*a)
Energieträger FERN
FERN
Energieeffizienzklasse C
C
Baujahr 2026
2026
Geltende EnEV 2014
2014
Gebäudeart Wohn
Wohn
Objektnummer 25031_AFm_MI
25031_AFm_MI
Erstbezug im Neubau: 2 Zimmer auf ca. 64,39 m² mit tollem Balkon (3 Wohnungen verfügbar)!
Dien Tohuus Immobilien bietet an:
Erstbezug — 2-Zimmer-Wohnung im Stadtteil Stör nach Vereinbarung zu vermieten!
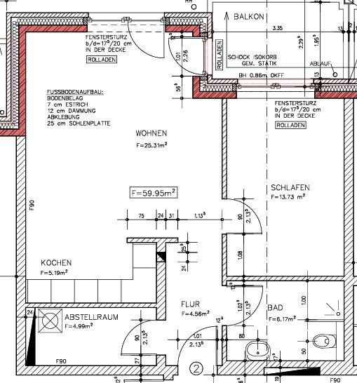
In der Paul-Böhm-Str. 48 entsteht eine tolle neue Immobilie in der 11 Wohnungen zu vermieten sind. Diese Wohnung liegt im Erdgeschoss. Die Terrasse ist Richtung Nord-Westen ausgerichtet. Die Wohnung verfügt über eine Wohnfläche von ca. 64,39 m².
Neben den 2 Zimmern verfügt die Wohnung über ein innenliegendes Bad mit bodengleicher Dusche, Hauswirtschaftsraum und eine toll ausgestatteten Einbauküche.
Die Fertigstellung ist für 04/2026 geplant.
Diesen Wohnungstyp bieten wir noch 1x im 1.OG und 2x im EG an.
Raumprogramm:
Wohnzimmer: ca. 25,01 m²
Kochen: ca. 5,19 m²
Schlafzimmer: ca. 14,10 m²
Bad: ca. 6,17 m²
Flur: ca. 5,05 m²
Hauswirtschaftsraum: ca. 5,19 m²
Balkon: ca. 7,35 m² (3,68 m² angerechnet auf die Wohnfläche)
Ausstattung:
Fußbodenheizung, Personenaufzug, Fliesen und Designbelag in Holzoptik, bodengleiche Dusche, Satellitenanschluss
Ausstattung der Einbauküche:
Cerankochfeld, Backofen, Abzugshaube, Kühlschrank, Gefrierschrank, Geschirrspülmaschine
Die Verträge für Strom und Telefon/Internet schließt der Mieter direkt mit einem Versorger seiner Wahl ab.
Haustiere sind nicht gewünscht.
1 Stellplatz gehört zur Wohnung
Die ersten 3 Jahre vereinbaren beide Seiten einen gegenseitigen Kündigungsausschluss.
Die Fotos sind aus einer vergleichbaren Immobilie. Die Ausstattung wird sehr ähnlich.
Die Angaben zum Energieausweis sind dem Energieeinsparnachweis nach dem Gebäudeenergiegesetz GEG 2023 entnommen.
Die Paul-Böhm-Straße in Neumünster überzeugt durch ihre ruhige, gepflegte Wohnlage mit zugleich sehr guter Anbindung an die städtische Infrastruktur. Die Straße befindet sich in einem gewachsenen Wohngebiet, das von Einfamilien- und Mehrfamilienhäusern geprägt ist und durch eine angenehme Nachbarschaft sowie wenig Durchgangsverkehr besticht. Hier profitieren Bewohner von einem hohen Maß an Ruhe und Wohnqualität.
Dennoch sind sämtliche wichtigen Einrichtungen des täglichen Bedarfs schnell erreichbar: Supermärkte, Bäckereien, Apotheken und Dienstleister befinden sich nur wenige Minuten entfernt. Auch Schulen, Kindergärten und medizinische Versorgungseinrichtungen liegen gut erreichbar im näheren Umfeld, was die Lage besonders attraktiv für Familien macht.
Für Freizeit und Erholung bieten sich mehrere Grünflächen und Parks in der Umgebung an. Darüber hinaus sind Sport- und Freizeitangebote wie Fitnessstudios, Vereine oder Spielplätze nur kurze Wege entfernt. Die Nähe zur Neumünsteraner Innenstadt ermöglicht zudem unkomplizierten Zugang zu Restaurants, Cafés und kulturellen Angeboten.
Die Verkehrsanbindung ist sowohl mit dem Auto als auch mit öffentlichen Verkehrsmitteln hervorragend: Über die umliegenden Hauptverkehrsstraßen erreicht man schnell das Stadtzentrum sowie die Autobahnanschlüsse in Richtung Hamburg, Kiel und Flensburg. Linien des öffentlichen Nahverkehrs bieten zudem regelmäßige Anbindung an weitere Stadtteile und den Bahnhof Neumünster.
Insgesamt bietet die Paul-Böhm-Straße eine ausgewogene Kombination aus ruhigem Wohnen, guter Erreichbarkeit und einem vielfältigen Angebot an Nahversorgung und Freizeitmöglichkeiten – eine begehrte Wohnlage für verschiedene Lebensphasen.
Sie haben weitere Fragen zu dieser Immobilie oder suchen noch nach einer Immobilie?
Dann sprechen Sie mich gern und unverbindlich an, damit ich Sie beraten kann.
Ihr Ansprechpartner:
Dien Tohuus Immobilien GbR
Arne Fredenhagen
Mühlenstr. 21
24539 Neumünster
Mobil: +49 152 / 28896706
EMail:
Bitte beachten Sie, dass wir, aufgrund der Vorgaben der neuen Datenschutzgrundverordnung (DSGVO), keine telefonischen Informationen zu dem Objekt erteilen können. Wenn Sie weiteres Interesse an diesem Objekt haben, dann füllen Sie bitte hierfür einfach das Kontaktformular mit Anschrift, Telefonnummer und E-Mail Adresse aus, damit ich Ihnen das vollständige Exposé zukommen lassen kann und ich, entsprechend der DSGVO berechtigt bin, Sie auch telefonisch zu kontaktieren. Wir bitten hierfür um Ihr Verständnis.
Alle Daten in diesem Exposé beruhen auf Angaben des Verkäufers – Die Objektangaben wurden mit großer Sorgfalt zusammengestellt. Für die Richtigkeit der Verkäufer-, Anbieter- und Angebotsangaben können wir keine Haftung übernehmen. Irrtümer bleiben vorbehalten.
Unsere Angebote sind freibleibend und unverbindlich. Die Einrichtung und Ausstattung auf den Grundriss-Zeichnungen ist beispielhaft dargestellt.
