Standort 24326 Dersau
24326 Dersau
Verfügbar ab sofort
sofort
Zustand Neuwertig
Neuwertig
Kosten
Kaltmiete 1110.00
1110,00 EUR
Nebenkosten 225.00
225,00 EUR
Kaution 2220
2220 EUR
Flächen
Wohnfläche 80.73
80,73 m'
Nutzfläche 4.00
4,00 m'
Zimmer 2.00
2,00
Schlafzimmer 1.00
1,00
Badezimmer 1.00
1,00
Stellplätze 1
1
Ausstattung
Bauweise Massiv
Massiv
Dachform Walmdach
Walmdach
Heizungsart Zentral
Zentral
Befeuerung Gas, Solar
Gas, Solar
Keller Ja
Ja
Balkone 1.00
1,00
Barrierefrei True
Ja
Haustiere erlaubt
Haustiere erlaubt True
Ja
Energieausweistyp BEDARF
BEDARF
Gültig bis 22.09.2025
22.09.2025
Energiebedarf 23.42
23,42 kWh/(m²*a)
Energieträger GAS
GAS
Energieeffizienzklasse A+
A+
Baujahr 2021
2021
Geltende EnEV 2014
2014
Gebäudeart Wohn
Wohn
Objektnummer 25017_AFM_15
25017_AFM_15
Direkt am Plöner See! 80,75 m² groß, exklusiv, barrierearm, toller Balkon mit direktem Seeblick!
Dien Tohuus bietet an: Diese tolle Wohnung (Nr. 15) befindet sich im 1. Obergeschoss und verfügt auf 80,75 m² über 2 Zimmer. Sie ist exklusiv ausgestattet und wurde barrierearm nach DIN 18040-Teil 2 R gebaut.
Die Wohnung verfügt über einen Balkon mit direktem Seeblick!
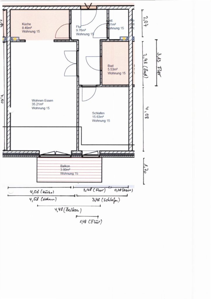
Wohnen/Essen: 36,47 m²
Küche: 8,32 m² – Backofen, Ceran-Kochfeld, Dunstabzugshaube, Geschirrspüler und Kühl-Gefrier-Kombi
Schlafen: 15,59 m²
Bad: 5,53 m²
Flur: 9,76 m²
Abstellraum: 2,70 m²
Balkon: 7,60 m² (hiervon 1,90 m² auf die Wohnfläche angerechnet)
Kellerraum: ca. 4 m² Nutzfläche
Energieausweistyp: Bedarfsorientiert
Endenergiebedarf: 23,42 kWh/(m²*a)
Energieeffizienzklasse: A+
gültig bis 22.09.2025
Gaszentralheizung mit unterstützender Solarthermie für die Warmwasseraufbereitung
Flughafen Fuhlsbüttel 78,8 km 1 Std. und 9 Minuten
Bahnhof Ascheberg 3,7 km 4 Minuten
Kita Dersau 0,6 km 1 Minute
Grundschule Ascheberg 3,30 km 3 Minuten
Gemeinschaftsschule Plön 10,4 km 13 Minuten
Gymnasium Plön 9,5 km 11 Minuten
Massiv mit Kalksandstein gebaut, mit 18cm Dämmung versehen und mit einem beige-braunen Ziegel verblendet kommt die Immobilie exklusiv und modern daher. Der Dachbereich ist in Form eines Staffelgeschosses gestaltet und mit grünen Ziegeln eingedeckt. Die Balkone ziert eine strapazierfähiger Banghirai-Holzbelag. Die Fenster und Türen bestehen aus weißem Kunststoff und einem Ug-Wert
Willkommen im idyllischen Dersau!
Dersau ist eine kleine, dörflich geprägte Gemeinde im Kreis Plön. 945 Einwohner auf 7,5 km2 Fläche genießen das Schonklima und die landschaftlichen Reize. Dersau ist umgeben von Wald-, Wiesen und Knicklandschaften und bietet sowohl Einwohnern, wie auch Feriengästen ideale Lebens- und Erholungsbedingungen. Der Wanderweg am Ufer des Großen Plöner
Sees ist der längste der Region. Neben zwei Campingplätzen und Kunsthandwerk wird der Ort mit dieser Immobilie um ein Restaurant und ein Café bereichert. In der näheren Umgebung liegt ein Käsehof und kurz vor Ascheberg befindet sich eine Fischerei und Räucherei, die Spezialitäten direkt aus dem Großen Plöner See anbietet.
Im Mittelpunkt der aktiven Freizeitgestaltung steht das Wasser. Der Große Plöner See lädt zum Segeln, Rudern, Angeln oder einer Seerundfahrt auf einem der gemütlichen Fahrgastschiffe ein.
Wenn Sie die holsteinische Schweiz mit dem Rad erkunden möchten, bietet das sanft-hügelige Terrain vollständig ausgeschilderte Radwanderrouten zwischen 25 und 58 km an. Aktiven Wanderern bietet der der ”Nordic Fitnesspark Holsteinische Schweiz” mit ca. 150 km Länge, eine Herausforderung an. Nur wenige Kilometer entfernt befinden sich die Golfplätze von Gut Waldsleben und von Gut Wensin. Auf Gut Stockseehof gibt es das ganze Jahr unterschiedliche Aktivitäten, z.B. die ”Park & Garden Country Fair oder Konzerte im Rahmen des Schleswig-Holstein-Musikfestivals. Auch Aktivitäten, wie Erdbeer- oder Kischenpflücken sind eine Attraktion für Jung und Alt. Wer mal etwas, vielleicht ganz Neues, ausprobieren möchte, nutzt die nahegelegene Boulebahn.
Verkehrsanbindung:
Dersau ist an die Buslinie Plön-Stocksee-Nehmten angebunden. Innerhalb von zehn Autominuten ist man auf der A21 Richtung Kiel bzw. Lübeck/Hamburg.
Mit dem PKW leicht zu erreichen:
Plön 10,8 km 13 Minuten
Hamburg 90,0 km 1 Std. und 9 Minuten
Kiel 35,5 km 40 Minuten
Neumünster 29,0 km 29 Minuten
Ascheberg 4,1 km 6 Minuten
Sie haben weitere Fragen zu dieser Immobilie oder suchen noch nach einer Immobilie?
Dann sprechen Sie mich gern und unverbindlich an, damit ich Sie beraten kann.
Ihr Ansprechpartner:
Dien Tohuus Immobilien GbR
Arne Fredenhagen
Mühlenstr. 21
24539 Neumünster
Mobil: +49 152 / 28896706
EMail:
Ich freue mich über Ihren Anruf!
Bitte beachten Sie, dass wir, aufgrund der Vorgaben der neuen Datenschutzgrundverordnung (DSGVO), keine telefonischen Informationen zu dem Objekt erteilen können. Wenn Sie weiteres Interesse an diesem Objekt haben, dann füllen Sie bitte hierfür einfach das Kontaktformular mit Anschrift, Telefonnummer und E-Mail Adresse aus, damit ich Ihnen das vollständige Exposé zukommen lassen kann und ich, entsprechend der DSGVO berechtigt bin, Sie auch telefonisch zu kontaktieren. Wir bitten hierfür um Ihr Verständnis.
Alle Daten in diesem Exposé beruhen auf Angaben des Verkäufers – Die Objektangaben wurden mit großer Sorgfalt zusammengestellt. Für die Richtigkeit der Verkäufer-, Anbieter- und Angebotsangaben können wir keine Haftung übernehmen. Irrtümer bleiben vorbehalten.
Unsere Angebote sind freibleibend und unverbindlich. Die Einrichtung und Ausstattung auf den Grundriss-Zeichnungen ist beispielhaft dargestellt.
